Tuesday, October 7, 2025
The Best Laid Plans
Back in March, a full year since the start of our association, my architect and I were very close to completing the design of the structure pending an evaluation of some tweaks to the design to include monopoly framing and a recessed entry door, and I began searching for a builder to provide a quote so I could provide a realistic budget to a bank. I'll say now that this turned out to be the wrong order of operations but I'll explain why later.
I looked for a builder but most said they didn't have any time in their schedule or quoted what I considered to be outlandish generic "per square foot" quotes. My architect suggested a couple builders she knew. The first builder I called wouldn't provide a quote unless I gave him $1000. I shit you not. Hey, I get it...my father used to spend hours quoting larger jobs, so I understand that accurate quotes take time, but despite his promise to apply the $1000 as a credit to the price of his services I declined to proceed with him simply because I couldn't fathom paying him $1000 just so he could quote me a price I couldn't afford.
My conversation with the second builder was a bit more promising. I emailed the builder a copy of the construction documents and my requirements document. A week or so later we arranged a call, during which the builder admitted she was working on a commercial project that she expected to wrap up in a few months, at which point she would have time to quote my job. I told her that while I was not under any extreme scheduling pressure, I wanted to get a shovel in the ground by June of this year (2025). In the subsequent months I sent her an email requesting an update and each time she said she was too busy at the moment and promised to get back to me soon.
In May my patience grew thin so I contacted her to point out that time was wasting and I really needed to get something in writing. At that point she told me that she didn't have the bandwidth for my project and suggested I locate another builder. I couldn't help but roll my eyes, wondering why she didn't have the sense to suggest that at the outset. Despite my frustration I kept my cool and merely asked her for a referral to a builder she knew that might have the necessary resources to tackle my project. About a week later she sent contact information for Evolved Construction and I opened a dialogue with them.
New Builder
As with the prior builder I emailed Evolved a copy of my construction drawings and requirements document. But this time things were different. Evolved promptly contacted me just prior to a work trip and offered to introduce themselves over an online meeting to discuss the project once I returned home. I considered this simple act amazing, as it was the first time I'd spoken to anyone in the course of this project with a willingness to leverage modern communications technology.
Once home we had a very productive hour-long discussion. As I shared my screen and showed them the development history of the project as well as some concepts and pictures of the site they seemed quite enthusiastic. We talked about everything, including our respective philosophies with regard to pricing and quality. To my surprise, the project lead said they had already conducted a site visit and found no issues with building on it, aside from getting large semi-trailers to the property over the single lane road -- an issue we agreed was not insurmountable. They also said they gave my requirements to their subs for review and the subs had no concerns, proving I wasn't asking for anything over the top or out of their league.
The unfortunate revelation from this meeting occurred when they pointed out, as politely as possible, that the costs to build the structure with the current footprint would significantly exceed my recently revised budget of $450K, so I elected to begin an optimization process that would result in additional cuts and compromises as required to trim the cost to a reasonable level.
The Not So Sane Architect
While working on this revised plan my architect reached out for the first time in six months. I'll spare you the details of the terse and testy discussion that followed, but we did not see eye-to-eye on what I believed was a reasonable request to change the design as part of the existing contract.
She considered her job done and wanted the contract to be paid in full. I tried to get her to admit her deficiencies in performance and lack of communications over the last year and agree to a reasonable discount on her fee that she could apply to the revision of the building if desired, but like so many businesses today, she was clearly more obsessed about the money she was making than viewing my satisfaction as paramount. What should have taken, at most, 60-90 days with proper and effective communications on a weekly basis turned into a year long struggle. I blame about 5% of that failure on me and my crazy work schedule. The other 95% was squarely on her.
Unfortunately, as I discovered far too late in our association, my architect turned out to be nothing more than a designer who can run an ancient 2D cad tool (AutoCAD). She was not an engineer, did not have any structural engineers or MEP specialists on staff, and was unwilling or unable to produce drawings to my standards, which include full MEP. She also failed to demonstrate any serious understanding of modern building science. I alone drove the discussion and wrote the requirements for the wall and roof assemblies, defined the insulation and air-sealing strategies and created basic MEP drawings to propose locations for HVAC ductwork and other essential components. And, for what it's worth, she also never managed to perform the site visit and develop the site plan she promised over a year ago.
The fact that I spent hundreds of hours of my time doing this, when I hired someone specifically to take this burden from me, speaks volumes. I am now kicking myself for not buying a copy of Revit and doing the design myself as I originally planned. Even if I failed to complete the design and found myself in the same place at this point, I'd be out nothing more than around $2500 for the software -- a small fraction of what I spent on this "architect". The only saving grace is that her fee was the lowest of any architect I spoke to (coincidentally proving the adage "you get what you pay for"), so the damage could have been much worse.
I've managed my share of multi-million dollar projects and other resources, and in the process have developed a pretty keen sense of the kind of people that will help me succeed, as well as those that will send me on a path to failure, and I knew if I continued my association with this person I would not be happy with the end product. As a result, I reluctantly paid her the remainder of her fee and terminated our relationship. If you're thinking that her fee was a waste of money, I'd generally agree, but I also think that sometimes paying people to figure out what you should not do or who you shouldn't work with is worth the expense.
New Plan and Strategy

Having lost a solid year of development time to a fool's errand, I began looking more closely at pre-fabricated options that I could potentially fund with cash to minimize dependency on a bank, develop as a smaller / less expensive detached garage in the event that the bank insisted I build a home at the same time, as well as improve the speed of construction. A few online searches later I found a company in Nebraska called Legacy Post and Beam. Their website displayed a vast number of pre-manufactured designs and completed projects that I knew would be the right fit, including a raised aisle barn design and a derivative completed project that had many of the exterior and interior design elements I wanted from the start, as well as a series of dedicated home projects I could leverage in the future if everything went as expected.
A discussion with the company revealed the same enthusiasm for my project as the new builder displayed, and for the first time in a long time, I had hope that I might eventually assemble the effective team that I'll ultimately need to get this project done. I learned at this time that Legacy would leverage their CAD design expertise and their structural engineers to produce a full set of construction documents including a foundation plan, and in combination with my requirements document, I'd have everything my builder would need to quote and ultimately construct the building.
Within a week of my first contact with Legacy I had come up with a new plan to cut the guest suite, eliminate the dual center bay concept in favor of a single 20 foot wide bay, and trim 30% of the total square footage of the building to get the project within budget. I also began to shift my plan away from strict light-wood framing and toward a hybrid approach to include post-and-beam framing, so I could leverage off-site manufacturing to reduce the amount of on-site work and permit my builder to begin work on the foundation while the frame was constructed in a factory.
Why Post and Beam?
In an earlier post I pointed out that one of my requirements for this building was to make it possible to restructure, rewire, or replumb the building if its role changes from a primary residence to a secondary structure that could support my engineering business. As it turns out, post-and-beam architecture is more adaptable because of how these types of structures handle structural loads and how they are typically insulated.
Per the residential building code, my zone requires either R23 cavity insulation OR R5 continuous (exterior) insulation and R20 cavity insulation. Given that post and beam frames carry all the vertical structural loads, the light-wood framing placed between the post and beam frame elements (called the "fill-in framing) is not vertical load-bearing though it will provide essential sheer strength. When combined with 3/4" sheathing this will allow me to migrate the wall framing to 2x6 24" OC, which will result in less thermal bridging and greater effective R-value, as well as lower cost, as I will need fewer studs to frame the equivalent space.

In the original design I settled on a wall assembly consisting of 2x8 studs and a R23 (2x6) mineral wool batt, with the goal to leave a small gap between the wallboard and the face of the batt to act as a wiring / plumbing chase. I was never 100% satisfied with this approach because I knew it would increase the cost of the framing, and might not mitigate my concerns related to moisture and mold growth within the wall assemblies, but assuming I wanted to use mineral wool in the wall cavities I saw no other choice at that time.
Later in the design process I considered exterior insulation to restore some of the R value lost by using the R23 batt and prevent mold growth. Two immediate issues came to mind with this approach, however. The first is cost. Rigid mineral wool insulation is expensive and I'd need two full layers of this material -- one 2.5" (R10.5) and one 3" (R12.6) -- to achieve the required R23 total. The second is the precarious and complex process of mounting siding through 5" of insulation. This would result in all siding being cantilevered at the end of a very long fastener, which is not something I care to deal with on this project.
The solution to this would be the creation of a SIP formed by 2x6 studs sandwiched between two layers of sheathing, essentially creating a variation of the double-framed wall assembly I toyed with earlier, which would add significantly to cost. I therefore elected to compromise and install one 1.25" (R5.25) exterior panel as continuous insulation and a traditional R23 Fibreglass batt within the wall cavity. While Fiberglass has its issues as I've discussed earlier, it has two significant advantages over mineral wool batts -- lower cost and lower density, which will allow me to snake wires and tubing through it.
As for the roof assemblies, I have decided to splurge a bit and implement an over-roof consisting of 2x6 or 2x8 studs 24" OC combined with mineral wool batts or rigid wool panels. This exterior insulation method will allow me to install tongue-and-groove boards above the perlins, which will serve to enhance the structural performance of the roof assembly and provide a decorative ceiling I'll see from below in the finished space, giving a bit of a "high end" feel to the building. These vaulted ceilings will make it easier to install and maintain the mechanical systems and provide additional ceiling height (particularly in the residential spaces) that will make the otherwise small spaces seem bigger.
Why Exterior Insulation?
The epiphany for me regarding exterior insulation came several months ago when I was watching a video on Matt Risinger's channel in which they were talking about framing an insulated over-roof assembly. The builder described one of the significant benefits of this type of construction I hadn't considered. Typically, when roofing materials (shingles, etc.) are installed directly on top of the sheathing that covers the structural roof elements, thousands of holes are punched into the sheathing and through any air or moisture barriers, leading to possible leaks down the road -- a particularly alarming scenario in cases where spray foam is applied to the underside of the sheathing, completely hiding any potential leaks until the structure literally rots away or someone's foot steps through the roof.
Over-roofs, on the other hand, are effectively SIPs constructed (in my case) such that the top layer of sheathing takes most of the beating, while the sheathing that separates the over-roof and the living space is far less impacted by penetrations. This ensures that the conditioned envelope remains well sealed, and if any damage does occur to the over-roof due to leaks, replacing it at some point in the future would be a lot easier, as the underlying roof structure would continue to protect the building's interior during that work.
Post and Beam framing carries a premium over light-wood framing, but some back of the napkin math suggests a good percentage of that premium will be offset by the changes I've proposed, and yet this will still produce an extremely efficient structure that far exceeds minimum structural requirements and meets or exceeds insulation requirements. Also, the continuous insulation should ensure that the interior face of the exterior sheathing remains above the dew point in the winter and hence no condensation (and ultimately mold) will form. As I explained in an earlier post, mold is a serious threat to any structure that attempts to comply with modern building code insulation requirements (i.e. thicker walls and roofs) and, at the end of the day, I'm willing to spend more to ensure a healthy home.
Frame Design and On-Site Assembly
During our first conversations Legacy went through a preliminary design process and revealed to me that 6x timbers would meet structural requirements given a design wind load of 104MPH and a modest seismic requirement we must meet on the mountain. Given the roughly $15K difference between 6x and 8x timbers, the improved aesthetics of 2x6 fill-in framing between 8x timbers (the outer edge of which would remain exposed, highlighting the structure of the building), the improved structural design margins of the 8x timbers, as well as commonality in design with the home I may build in the future, I elected to specify 8x timbers.

I discussed this new plan with my new builder and asked them if they would have any issues erecting the frame. They admitted they have erected smaller post and beam frames, but suggested they would be more comfortable having another contractor who does this all day long put up the frame and then continue their work. I then emailed Legacy requesting a contact for just such a builder and they referred me to a company based in Atlanta called Canopy Home Builders that has erected many Legacy frames in the area. I contacted Canopy the same day and received a quote the next day. I considered this quick turnaround yet another refreshing win, as I now have three of the four critical elements required to finally get this project off the ground.
One Big Mistake
I'll be the first to admit I've made a lot of little mistakes throughout this project's development. It's hard to admit, however, that I made one big mistake at the outset of this project that I attribute to having the mind of an engineer. I thought the engineering of this project would be the most challenging and time-consuming aspect so I tackled that first. I also genuinely thought that unless I had a set of construction documents accurate enough to produce a quote and a builder on board that could provide that quote then getting a bank to underwrite the project would be easy. Hindsight being 20/20, I was clearly wrong.
I spoke with several banks over the last year and most have refused to fund the project for a variety of reasons. Excuses included:
-
"The residential space is smaller than the garage space. We'll fund to a maximum XX% LTV" (unacceptable to me at the time because I didn't have the cash to supplement the loan).
-
"The garage space is greater than 50% of the total space. That looks like a barndo and we don't underwrite barndos because it's hard to get comps for appraisal purposes."
-
"We underwrite barndos, but you're using traditional framing and a full foundation rather than a post frame. That doesn't qualify as a barndo" (yes, a bank specializing in barndos actually said that to me!)
-
"Why are you installing automotive service lifts? That looks like you're planning to conduct business in your home and we only do residential loans. I'd be happy to refer you to our commercial loan department that will fleece you and expect you to forward a profit and loss statement for your business with an established credit history."
-
"We'll fund what you're building, but only if you build a $600K+ home along with it." Me: "I don't need a traditional home. That's why bought raw land and am building this structure. Plus, I can't afford to spend $1M on this project". Them: "Good luck with your project."
Rural1st
Almost ready to give up and wait a few years so I can save enough money to fund the project with cash and give a giant middle finger to every worthless, self-serving banker who wants me to build what they want me to build, rather than what I need to build, I decided to open a dialogue with Rural1st based on the recommendation of Legacy.
During this initial discussion I explained my plan in general terms and let slip my frustration with the funding process. The loan rep then revealed they are not actually a bank, but a coop that loans money to farmers, among others, using government bonds. The rep continued, describing the loan terms available (10-30 years), rates (6-3/8 for a 15 year note) and the fact that I will only be required to pay interest on the money I borrow during construction and then pay interest plus principle once the building is completed. We also discussed the entire loan process, which would begin with a pre-qualification. This doesn't involve pulling credit, but with my credit rating and the money I pledged to contribute to the project the rep didn't think it would be difficult getting pre-qualified for the higher end of a range of what I consider a reasonable mortgage, or about $300K. I then wrapped up the call, and sent him a copy of my proposal late on a Friday.

On Monday the loan rep called after he had time to review my proposal, and I once again found myself in the position of defending my plan. He seemed to take issue with what he perceived as garage space taking up more than 50% of the total square footage. This led to a long discussion and my attempt to clarify exactly what constituted residential space within the structure, which he then defined as "any heated/cooled living space". Under that definition I could easily attribute most of the floor plan as everything including the garage space will be climate controlled and I "live" in my garage and office most of my waking hours, but he said my proposed floor plan would likely not meet their underwriting standards. Never one to give up, I asked for greater detail on exactly what laws, regulations, or policies mandated 50% living space. That's when he defined the terms "non-conforming" and "non-compliant".
Normally, Rural1st loans money to active farming operations or those getting into farming. Any funding for a structure that is not used to support a farming operation is labeled "non-conforming". Non-conforming structures can be underwritten, but at substantially lower loan-to-value ratios, meaning a higher down payment. When a structure that provides garage space and living space is concerned, however, living space must be 50% or greater of the total area of the building per federal regulations governing the bonds used to underwrite the mortgage. Any structure that does not meet this standard is considered "non-compliant" and cannot be funded under any condition.
Convinced the issue was more to do with naming conventions and misunderstandings, the rep and I then discussed possible changes to the floor plan and whether specific areas could be classified as utility or living space. When I told him that I'd tweak the floor plan accordingly I asked whether the floor plan I create would be sufficient to send to underwriting for approval but he said that underwriting would require the same documents I would send to the builder to obtain approval. That threw a wrench in the works because obtaining the construction documents would require me to give Legacy a 20% deposit on a building I didn't know would meet Rural1st's underwriting requirements. I pointed out this chicken-or-egg problem and he understood my hesitancy, but he offered that this is a fairly common occurrence, and if I can figure out a way to get the living space to be 50% or greater, the building would not be considered non-compliant and would receive funding given my favorable financial situation.
I then called Legacy to discuss the issue and to ask if any of the 20% deposit was refundable in a worst case scenario and they said yes. They also said they would rework the plan if Rural1st's underwriting took issue with it, but after some brief discussions I realized that by incorporating what Legacy called a "loft" in the design that was fully closed off from the garage (well, except for an observation window) and extending the utility room or perhaps completely integrating it with the mechanical room, that space would likely qualify as "living space".
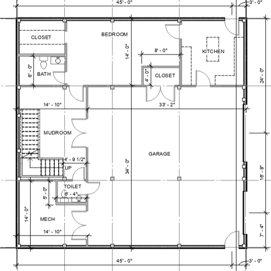
As part of this process I elected to extend the rear of the building another 2 feet because that would further increase the living space more than the garage space, so the total area of the building is now 48x48, or 2300 sq ft. For reference, the old building was approximately 50x66 or 3300 sq ft. At an approximate construction cost of $200/sq ft, this represents a savings of approximately $200,000.
Not long after I got off the phone with Legacy I received an email from Rural saying I had been pre-qualified. This put me in the position of putting my money where my mouth is, give Legacy a 20% deposit to get the design process rolling, and then wait until the plans are complete so I can get the loan funded.
The Next Steps
According to Legacy, the design process typically takes 2-3 months, so once all the documents are provided to underwriting, we'll have to wait until they approve the plan. If Rural funds the note, my builder can begin site work and foundation preparation, etc. By the time the foundation is ready, Legacy should have the frame built, and then it's just a matter of scheduling Canopy to erect the frame and the builder to continue work on the project. My builder is expecting a 4 month build time but I'm thinking it will be closer to 6 months. After all that's happened with this project I'm skeptical to speculate but I'm hoping that I will be in a position to move all of my assets to the mountain sometime in the summer of 2026.


